CASA MATERA – Proponiamo in vendita, in zona Giada, Via Caduti di Nassiriya, un appartamento al primo piano di un piccolissimo condominio moderno, costruito nel 2013, caratterizzato da tre esposizioni che garantiscono grande luminosità e da un’ampia metratura di circa 128 mq, ideale per chi cerca comfort, funzionalità e tranquillità in una zona residenziale ben servita.
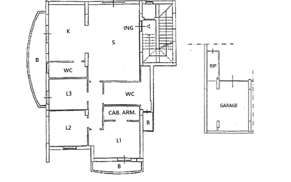
All’ingresso troviamo la zona giorno, composta da un ampio soggiorno e una cucina a vista, perfetta per momenti di convivialità, oltre a un comodo bagno di servizio. Gli spazi, ampi e ben distribuiti, permettono di vivere la zona giorno in totale comodità, con ambienti luminosi e accoglienti, arricchiti da pregiato parquet in tutta la casa e da cassettoni a filo muro che valorizzano lo stile moderno e pulito degli interni.
La zona notte comprende tre camere da letto spaziose, di cui la matrimoniale con cabina armadio e balcone a uso esclusivo, mentre il bagno padronale, completo sia di doccia walk-in che di vasca, è dotato di cromoterapia e di un balcone a servizio esclusivo, ideale per garantire luce naturale e un raffinato comfort quotidiano.
L’appartamento dispone inoltre di tre ampi balconi complessivi che circondano la casa e ne ampliano gli spazi abitabili, oltre a tapparelle elettriche che garantiscono praticità e comfort. Completa la proprietà un garage di 34 mq e un ripostiglio di 7 mq al piano seminterrato, offrendo ulteriore funzionalità e praticità.
L’immobile è dotato di predisposizione per l’impianto fotovoltaico e per il sistema di climatizzazione canalizzato, assicurando efficienza energetica e comfort moderno.
La posizione è residenziale, tranquilla e ben servita. L’abitazione è libera da subito, rappresentando un’opportunità unica per chi desidera un immobile moderno, luminoso e in ottime condizioni, pronto per essere abitato.
Il nostro ufficio è aperto tutti i giorni:
La mattina dalle ore 09.00 alle ore 13.00, il pomeriggio dalle 16.00 alle 21.00.
Siamo aperti anche il sabato, la mattina dalle 09.00 alle 13.00.
IMMOBILRETE Matera (MT) 75100
Via A. Passarelli 29/31
Tel. 0835 1975130
Cell. 375 6464882
| Indirizzo | VIA CADUTI DI NASSIRYA - Matera (MT) |
| Contratto | Vendita |
| Prezzo | € 360.000 |
| Tipologia | Appartamento |
| Superficie | 128mq |
| Locali | 4 |
| Bagni | 2 |
| Riscaldamento | Autonomo |
| Cucina | A vista |
| Box | Singolo |
| Giardino | |
| Arredamento | Non arredato |
| Stato | Ottimo/Ristrutturato |
| Piano | Primo |
| Libero | Si |
| Climatizzatore | Si |
| Classe energetica | Da definire |
| Prestazione energetica (kWh/m2 per anno) | 0.00 |
| Certificazione | Certificata |
| Balcone | Si |
Ragazzi educati , molto disponibili e molto professionali.Non meritano 5 stelle, ma molto di più
Antonio Marroccoli
Professionali e disponibili sempre!!!
Rita Galetta
Seri e professionali !
Lo staff disponibile !
Ottime proposte !
Provare per credere !
Personale efficientissimo e competente, basta entrare per sentirsi già a casa, consigliatissimo per tutti !
Enrico Losurdo
Professionisti a 360°
Francesco Greco
Bravi gentili e convinceti....
Mino lillo
A DIFFERENZA DI CHI SI IMPROVVISA AGENTE IMMOBILIARE.... IN QUESTA AGENZIA CI SONO PROFESSIONISTI VERI.... IL TOP DEL TOP... COMPLIMENTI!!!!!
Nunzio Mastrogiacomo
Grande agenzia unica ad Altamura il personale cordiale ed educato anche se non conoscevo nessuno. Grande concorso con "VINCI UNA CALZA DI UN METRO" bellissima iniziativa e grazieeeeeeeeeeeeeeeeeeee :SPERO CHE LO RIFATE IL PROSSIMO ANNO RICORDO''''''' QUEST'ANNO L'HA VINTA MIA FIGLIA SIETE GRANDI
Francesco Pestrichella
È grande..
Giampiero Lomurno
Professionisti seri!!! Disponibili, attenti a trovare il giusto immobile al miglior prezzo, grandissima serietà!
Filippo Cristallo
Grande agenzia con personale educato è molto professionale !!! Bravi ragazzi !!!
Antonio Castriotta
Ci siamo trovati benissimo, i ragazzi sono molto gentili e disponibili... ci hanno seguiti davvero dall'inizio alla fine. Da non tralasciare... Onestà e serietà!
Abbiamo acquistato la casa che tanto sognavamo!
Curano tanto l'aspetto professionale e seguono il cliente in maniera puntuale e precisa! Bravi !!
katya Vitella
Veri professionisti. Oltretutto innovativi, cordiali e davvero molto disponibili per ogni esigenza. Grazie a voi abbiamo comprato casa!!
Iolena MarinaNon hai ancora trovato la tua casa?
Contatta un nostro operatore.
Se preferisci, chiamaci
(Altamura)
00390803143160
(Matera)
003908351975130
Immobilrete Srl | P.Iva 07833170728
Realizzazione:justimmobili.it