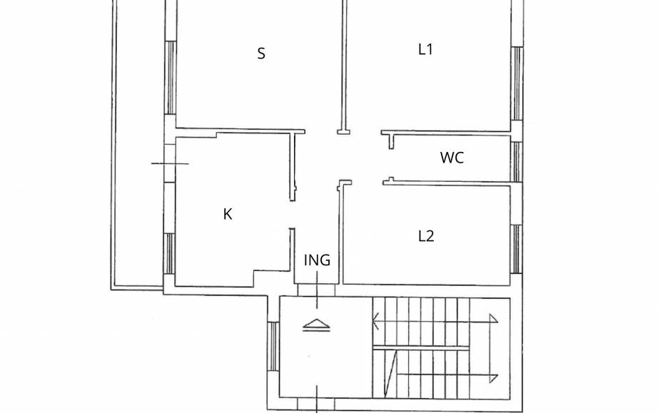
CASA MATERA - Proponiamo in vendita un appartamento di 70 mq circa posto al primo piano di un piccolo condominio, ideale per chi cerca una soluzione funzionale e con ottime potenzialità. L’appartamento è così composto: ingresso in disimpegno, cucina abitabile, soggiorno spazioso, camera da letto matrimoniale luminosa, stanzetta versatile e bagno padronale funzionale. L’immobile gode di doppia esposizione, che assicura buon ricambio d’aria e una naturale luminosità negli ambienti. È presente inoltre un comodo balcone a tutta ampiezza. Le finestre esterne sono in buone condizioni, un dettaglio importante in caso di ristrutturazione, inoltre l’edificio è dotato di cappotto termico esterno, che contribuisce a un miglior comfort energetico.
La soluzione si trova nel rione di Serra Venerdì, una zona completa di servizi, con attività commerciali, scuole, chiese, ampi parcheggi e la comodità di una posizione strategica, vicina al centro e facilmente raggiungibile da ogni punto della città. L’appartamento è libero da subito, adatto sia come abitazione per una famiglia sia come investimento !!!
Il nostro ufficio è aperto tutti i giorni; La mattina dalle ore 09.00 alle ore 13.00, il pomeriggio dalle 16.00 alle 21.00.
Siamo aperti anche il Sabato; La mattina dalle 09.00 alle 13.00.
IMMOBILRETE Matera (MT) 75100
Via A. Passarelli 29/31
Tel. 08351975130
Cell. 3756464882
| Indirizzo | VIALE EUROPA - Matera (MT) |
| Contratto | Vendita |
| Prezzo | € 135.000 |
| Tipologia | Appartamento |
| Superficie | 70mq |
| Locali | 4 |
| Bagni | 1 |
| Riscaldamento | Autonomo |
| Cucina | Abitabile |
| Giardino | |
| Arredamento | Non arredato |
| Stato | Da ristrutturare |
| Piano | Primo |
| Libero | Si |
| Climatizzatore | Si |
| Classe energetica | Da definire |
| Prestazione energetica (kWh/m2 per anno) | 0.00 |
| Certificazione | Certificata |
| Balcone | Si |
Ragazzi educati , molto disponibili e molto professionali.Non meritano 5 stelle, ma molto di più
Antonio Marroccoli
Professionali e disponibili sempre!!!
Rita Galetta
Seri e professionali !
Lo staff disponibile !
Ottime proposte !
Provare per credere !
Personale efficientissimo e competente, basta entrare per sentirsi già a casa, consigliatissimo per tutti !
Enrico Losurdo
Professionisti a 360°
Francesco Greco
Bravi gentili e convinceti....
Mino lillo
A DIFFERENZA DI CHI SI IMPROVVISA AGENTE IMMOBILIARE.... IN QUESTA AGENZIA CI SONO PROFESSIONISTI VERI.... IL TOP DEL TOP... COMPLIMENTI!!!!!
Nunzio Mastrogiacomo
Grande agenzia unica ad Altamura il personale cordiale ed educato anche se non conoscevo nessuno. Grande concorso con "VINCI UNA CALZA DI UN METRO" bellissima iniziativa e grazieeeeeeeeeeeeeeeeeeee :SPERO CHE LO RIFATE IL PROSSIMO ANNO RICORDO''''''' QUEST'ANNO L'HA VINTA MIA FIGLIA SIETE GRANDI
Francesco Pestrichella
È grande..
Giampiero Lomurno
Professionisti seri!!! Disponibili, attenti a trovare il giusto immobile al miglior prezzo, grandissima serietà!
Filippo Cristallo
Grande agenzia con personale educato è molto professionale !!! Bravi ragazzi !!!
Antonio Castriotta
Ci siamo trovati benissimo, i ragazzi sono molto gentili e disponibili... ci hanno seguiti davvero dall'inizio alla fine. Da non tralasciare... Onestà e serietà!
Abbiamo acquistato la casa che tanto sognavamo!
Curano tanto l'aspetto professionale e seguono il cliente in maniera puntuale e precisa! Bravi !!
katya Vitella
Veri professionisti. Oltretutto innovativi, cordiali e davvero molto disponibili per ogni esigenza. Grazie a voi abbiamo comprato casa!!
Iolena MarinaNon hai ancora trovato la tua casa?
Contatta un nostro operatore.
Se preferisci, chiamaci
(Altamura)
00390803143160
(Matera)
003908351975130
Immobilrete Srl | P.Iva 07833170728
Realizzazione:justimmobili.it