CASA ALTAMURA- Proponiamo in vendita in zona Via Pietro Colletta un elegante attico mansardato posto al terzo piano di un condominio dotato di ascensore.
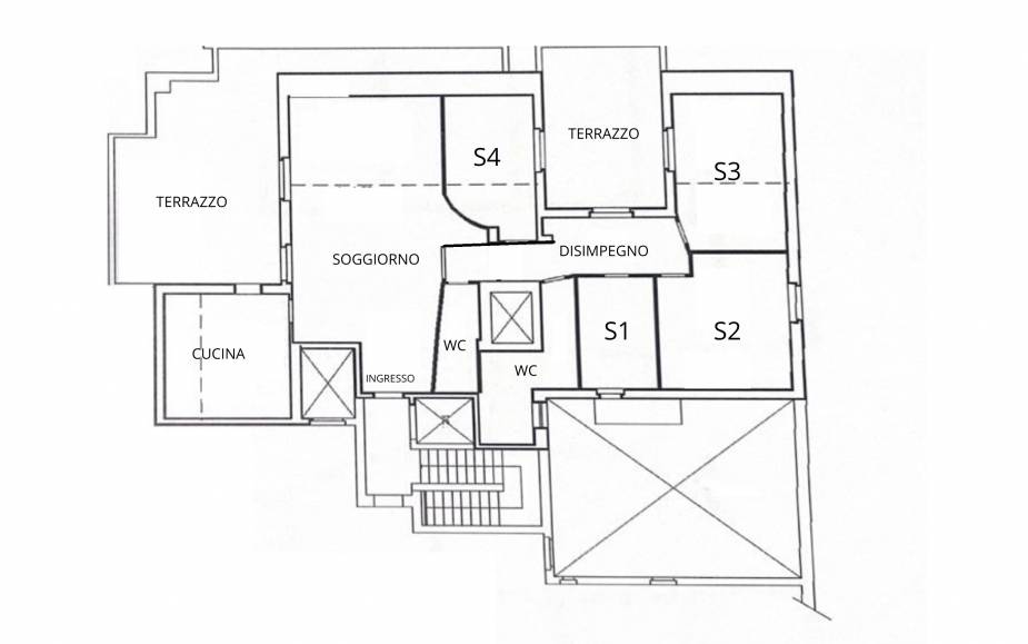
L'immobile di generosa metratura accoglie con un luminoso soggiorno abitabile affiancato da un comodo cucinotto. Entrambi gli spazi godono di un affaccio su un primo e ampio terrazzo, ideale per momenti di relax all'aperto o per piacevoli cene nelle sere d'estate.
Attraverso un disimpegno accediamo alla zona notte caratterizzata da parquet in tutti gli ambienti e composta da tre ampie camerette e camera matrimoniale con affaccio in un secondo terrazzo.
La soluzione dispone di due bagni: uno dotato di doccia e l'altro servito da vasca, pensati per garantire comfort e praticità alla vita quotidiana.
A completare la soluzione un garage a piano seminterrato.
L'immobile è in ottime condizioni ed è pronto per essere abitato.
Vi aspettiamo presso il nostro ufficio per tutte le informazioni.
Il nostro ufficio è aperto tutti i giorni: la mattina dalle ore 09.00 alle ore 13.00, il pomeriggio dalle 16.00 alle 21.00.
Siamo aperti anche il Sabato mattina dalle 09.00 alle 13.00.
IMMOBILRETE Altamura (BA) 70022
Viale Martiri 1799, 75
Tel. 080 314 31 60 / 327 33 21 318
| Indirizzo | VIA PIETRO COLLETTA - Altamura (BA) |
| Contratto | Vendita |
| Prezzo | € 155.000 |
| Tipologia | Attico |
| Superficie | 150mq |
| Locali | 5 |
| Bagni | 2 |
| Riscaldamento | Autonomo |
| Cucina | Cucinotto |
| Box | Singolo |
| Giardino | |
| Arredamento | Non arredato |
| Stato | Buono / Abitabile |
| Piano | Terzo |
| Libero | No |
| Accessibilità | Si |
| Climatizzatore | Si |
| Classe energetica | Da definire |
| Prestazione energetica (kWh/m2 per anno) | 0.00 |
| Certificazione | Certificata |
| Ascensore | Si |
| Terrazzo | Si |
Ragazzi educati , molto disponibili e molto professionali.Non meritano 5 stelle, ma molto di più
Antonio Marroccoli
Professionali e disponibili sempre!!!
Rita Galetta
Seri e professionali !
Lo staff disponibile !
Ottime proposte !
Provare per credere !
Personale efficientissimo e competente, basta entrare per sentirsi già a casa, consigliatissimo per tutti !
Enrico Losurdo
Professionisti a 360°
Francesco Greco
Bravi gentili e convinceti....
Mino lillo
A DIFFERENZA DI CHI SI IMPROVVISA AGENTE IMMOBILIARE.... IN QUESTA AGENZIA CI SONO PROFESSIONISTI VERI.... IL TOP DEL TOP... COMPLIMENTI!!!!!
Nunzio Mastrogiacomo
Grande agenzia unica ad Altamura il personale cordiale ed educato anche se non conoscevo nessuno. Grande concorso con "VINCI UNA CALZA DI UN METRO" bellissima iniziativa e grazieeeeeeeeeeeeeeeeeeee :SPERO CHE LO RIFATE IL PROSSIMO ANNO RICORDO''''''' QUEST'ANNO L'HA VINTA MIA FIGLIA SIETE GRANDI
Francesco Pestrichella
È grande..
Giampiero Lomurno
Professionisti seri!!! Disponibili, attenti a trovare il giusto immobile al miglior prezzo, grandissima serietà!
Filippo Cristallo
Grande agenzia con personale educato è molto professionale !!! Bravi ragazzi !!!
Antonio Castriotta
Ci siamo trovati benissimo, i ragazzi sono molto gentili e disponibili... ci hanno seguiti davvero dall'inizio alla fine. Da non tralasciare... Onestà e serietà!
Abbiamo acquistato la casa che tanto sognavamo!
Curano tanto l'aspetto professionale e seguono il cliente in maniera puntuale e precisa! Bravi !!
katya Vitella
Veri professionisti. Oltretutto innovativi, cordiali e davvero molto disponibili per ogni esigenza. Grazie a voi abbiamo comprato casa!!
Iolena MarinaNon hai ancora trovato la tua casa?
Contatta un nostro operatore.
Se preferisci, chiamaci
(Altamura)
00390803143160
(Matera)
003908351975130
Immobilrete Srl | P.Iva 07833170728
Realizzazione:justimmobili.it